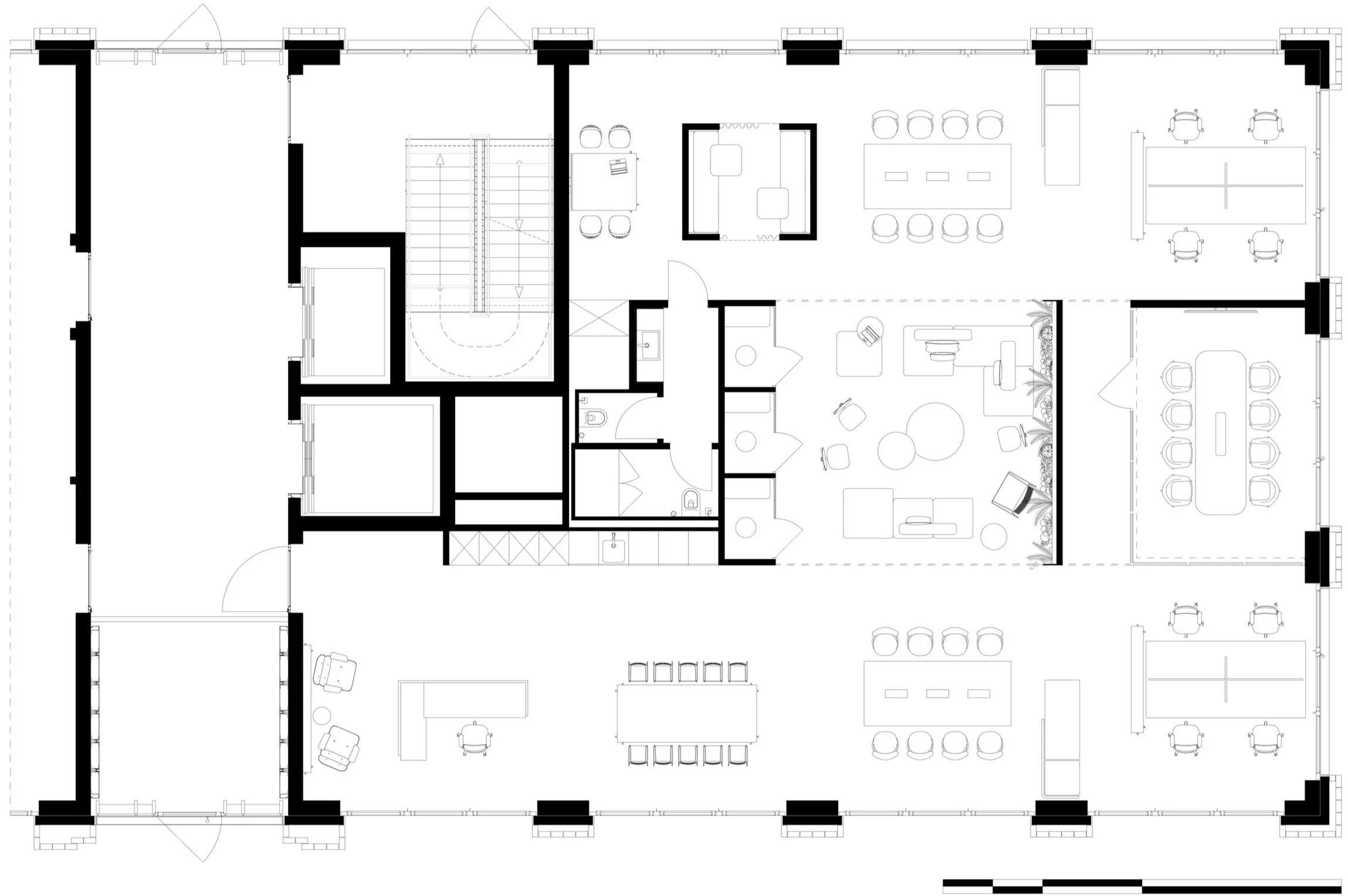
TechnoCampus Berlin

Am Siemensdamm 62, auf dem Gelände des ehemaligen Siemensgebäudes entsteht ein Campusgelände mit ca. 20.000 m² Mietfläche. Der Focus des TechnoCampus Berlin ist es, einen Ort zu schaffen, der flexibles Arbeiten und größtmögliche kreative Erholungsphasen kombiniert. Um unterschiedliche Konzepte von möglichen Arbeitswelten zu zeigen, haben wir zwei Büroeinheiten beispielhaft designed und ausgebaut.

Ort: Berlin, Deutschland

Jahr: 2022

Auftraggeber: AXA

Fläche: 280 m²

Leistung: LPH 1-7, Innenarchitektur, Möbel Design

Licht: van baal interior design

Fotograf: Cozy Studio

Zurück
Zurück

Bitmarck Office

Weiter
Weiter

Stiftung Charité